寧波垂直螺旋提升機廠家直供,價格優惠,產品包含垂直螺旋上料機、水平螺旋輸送機、傾斜式螺旋提升機、斗式上料機等,可根據用戶使用現場不同選擇不同的上料設備,也可量身定做,我們有完善的物料輸送解決方案,免費設計,價格優惠,歡迎惠顧!

一、產品概述:
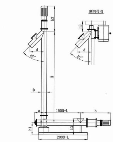
垂直螺旋輸送機又稱垂直螺旋提升機,主要用于垂直或大傾角輸送粉末、顆粒、非粘性容重≤1.3t/m的干燥物料。提升高度是指進出口之間的距離,一般不超過8米,1/2米為一檔,用戶可以選擇。提升高度小于8米時,只需在垂直螺桿提升機上部設置懸掛軸承,下部設置軸承。
二、垂直螺旋上料機的主要特點:
1. 體積小,轉速高,能保證快速均勻的運輸。
2. 剛性好,密封性好。外殼采用無縫鋼管,端部采用法蘭連接。
3. 出料端設有清洗裝置,噪音低,適應性強,進出口布置靈活。
4. 螺桿提升機承載重量大,安全可靠。
5. 垂直螺旋上料機適應性強,安裝維護方便,使用壽命長。
6. 垂直或大傾角輸送解決了占地面積。
7. 可以在輸送線上任意點裝料,對垂直螺旋輸送機配有相對螺旋的去聊裝置,方便取料。
8. 可逆向輸送也可以使一臺螺桿提升機同時向兩個方向輸送物料,即集中在中心或遠離中心。
9. 可實現密封輸送,有利于輸送易飛、熱氣味強的物料,減少環境污染,改善工人工作條件。
10垂直螺旋上料機運行演示
三、垂直螺旋上料機的維護方法:
10. 全自動螺旋給料機應無負荷啟動,即殼體內無物料時啟動,啟動后螺旋給料。
11. 檢查和消除自動螺旋給料機運行中的異常現象,不得強行運行。
12. 為了保證螺旋給料機無負荷啟動的要求,輸送機停止前應停止給料,外殼內的物料只有在完全輸送后才能停止運行。
13. 垂直螺旋上料機的蓋子在機器給料機的蓋子上,以免發生事故。
14. 輸送物料中不得混入硬塊物料,以免螺旋卡死,損壞螺旋機。
15. 螺桿提升機由下進料口、上出料口、垂直螺旋體、支撐軸承和驅動裝置組成。
四、產品綜述:
1、整機設計合理,占地面積小
2、可選擇移動式加料
3、可安裝振動電機,解決物料搭橋現象
4、源頭廠家供垂直螺旋上料機,可以設計任意尺寸
5、使用操作方便,易于清洗
6、廠家直銷螺桿提升機,價格美麗。
寧波,簡稱“甬”,浙江省轄地級市、副省級市、計劃單列市,國務院批復確定的中國東南沿海重要的港口城市、長江三角洲南翼經濟中心 。截至2019年,全市下轄6個區、2個縣、代管2個縣級市。全市陸域總面積9816平方公里,其中市區面積為3730平方公里;海域總面積為8355.8平方公里。 截至2021年末,寧波市常住人口為954.4萬人。 2021年,全市實現地區生產總值14594.9億元。
寧波地處中國華東地區、東南沿海,大陸海岸線中段,長江三角洲南翼,位于東經120°55'—122°16',北緯28°51'—30°33'之間。東有舟山群島為天然屏障,屬于典型的江南水鄉兼海港城市,是中國大運河南端出海口、“海上絲綢之路”東方始發港。寧波舟山港年貨物吞吐量位居全球第一,集裝箱量位居世界前三,是一個集內河港、河口港和海港于一體的多功能、綜合性的現代化深水大港。
寧波是國家歷史文化名城,公元前2000多年的夏代,寧波的名稱為“鄞”,春秋時為越國境地,秦時屬會稽郡的鄞、鄮、句章三縣,唐時稱明州。唐長慶元年(821年),明州州治遷到三江口并筑內城,標志著寧波建城之始。明洪武十四年(1381年),取“海定則波寧”之義改稱寧波 。截至2020年年底,寧波轄海曙、江北、鎮海、北侖、鄞州、奉化6個區,寧海、象山2個縣,慈溪、余姚2個縣級市。共有73個鎮、10個鄉、73個街道辦事處、754個居民委員會和2169個村民委員會
我司在寧波設立有辦事機構,用戶可就近咨詢我司的自動垂直螺旋提升機
理由:集研發、設計、生產、銷售各類自動螺旋上料機,全自動螺旋上料機,管式螺旋上料機,粉末螺旋上料機的生產型企業。振動式螺旋上料機廠自產品推出以來,以其簡約的設計、-完善的工藝、穩定的質量、良好的使用性能、合理的價格和完善的售后服務,振動式螺旋上料機廠在行業中得到好評,廣泛應用于煤炭,建筑,冶金,電力,化工,農業,食品、調味品等行業




客服1