南寧螺旋提升機廠家專業定制定做各種形式的小型粉劑螺旋提升機和大型集中控制供料系統,小型粉劑螺旋提升機適用于單一加料場合,集中控制供料系統,適用于多點加料的場合,可根據用戶現場環境免費設計,在南寧選購螺旋提升機,可就近咨詢我司辦事處電話:13838093755,我們安排工程師上門測繪,現場出圖。

南寧螺旋提升機廠家生產的工業螺旋上料機按照材質可分為碳鋼型和不銹鋼型,按照儲料斗形式分為方斗和圓斗,按照上料形式分為傾角型和垂直型,同時支持各種定制。
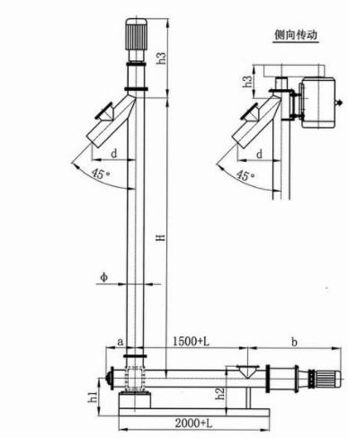
一、南寧螺旋提升機廠家設計的工作原理:
螺旋上料機是通過減速機帶動螺旋軸的轉動,螺旋軸上的螺旋葉片轉動帶動物料,將物料輸送到一定的水平距離和水平高度,在工業生產中得到較為廣泛的應用。
二、小型粉劑螺旋提升機主要技術參數:
1、上料速度:1-3T/H (可定制)
2、料箱容積:110升 (可定制)
3、電源:三相380V 50Hz (可定制220V)
4、整機功率:驅動電機1.1KW 振動電機150W
5、小型粉劑螺旋提升機整機重量:110Kg
6、上料高度:1600mm(可定制)
7、儲料倉外形尺寸:800×800mm(可定制圓斗上料機)
8、集中供料系統的技術參數,據用戶要求而定
三、小型粉劑螺旋提升機性能特點:

1、南寧螺旋提升機廠家的開關設計為正反轉控制,可以方便清除料管內的殘余物料;
2、在料管的下端設計有放料門,在清料的時候,打開放料門,電機反轉,即可完成清料;
3、采用卡箍固定螺桿端座,方便在拆卸時螺旋整條抽出,方便清洗;
4、可加裝傳感器及智能控制電路,進行料位控制實現自動給料功能或過載報警等功能;
5、在儲料倉上安裝有振動電機,可以有效解決物料搭架現象;
6、具有輸送效率高,工作安全可靠,結構簡單,功能完備;
7、密封性好、噪音小、外形美觀等特點;
四、南寧螺旋提升機廠家應用場景:
1、小型粉劑螺旋提升機可與粉劑定量包裝機配合使用,實現包裝機加料的自動化;
2、可與注塑機配合使用,將原料加入注塑機的料倉,同樣可以實現自動控制;
3、小型粉劑螺旋提升機可以獨立使用在將物料輸送到一定高度的場
4、支持各種要求的個性化定做小型粉劑螺旋提升機
5、源頭廠家,價格自然有優勢
6、可定制小型粉劑螺旋提升機自動化供料系統

南寧,簡稱“邕”,別稱綠城、邕城,是廣西壯族自治區轄地級市、首府、北部灣城市群核心城市,國務院批復確定的北部灣經濟區中心城市、西南地區連接出海通道的綜合交通樞紐 。截至2020年,全市下轄7個區、4個縣、代管1個縣級市 南寧市轄興寧、江南、青秀、西鄉塘、邕寧、良慶、武鳴7個城區和橫縣、賓陽、上林、馬山、隆安5個縣及南寧高新技術產業開發區、南寧經濟技術開發區、廣西—東盟經濟技術開發區等3家國家級開發區 ,總面積2.21萬平方千米 ,常住人口為8741584人 。2021年,南寧地區生產總值5120.94億元,按可比價格計算,比上年增長6.1%。
南寧地處中國華南地區、廣西南部,介于東經107°45′~108°51′,北緯22°13′~23°32′之間。是中國華南、西南和東南亞經濟圈的結合部,廣西政治、文化和教育中心,是泛北部灣經濟合作、大湄公河次區域合作、泛珠三角合作等多區域合作的交匯點,也是中國—東盟博覽會永久舉辦地、國家“一帶一路”有機銜接的重要門戶城市,南部戰區陸軍機關駐地。 南寧是一座歷史悠久的文化古城,同時也是一個以壯族為主的多民族現代化、國際化城市。
2017年1月,國務院發布《北部灣城市群發展規劃》,將南寧定位為面向東盟的核心城市,支持建成特大城市和邊境國際城市 ;2018年重新確認為國家衛生城市(區)。2023年,第三屆全國青年運動會將在廣西舉行,廣西計劃采取以南寧市為主,其他城市輔助的辦賽模式舉辦青運會。
我司在南寧設立有辦事機構,專門服務螺旋提升機用戶的定制需求,有需要的朋友,可以就近咨詢13838093755,我們會及時安排技術工程師到貴司測繪,出圖,提供一系列的售前技術支持。




客服1