不銹鋼螺旋提升機與材料的接觸部分采用不銹鋼材料,耐腐蝕。耐高溫。不容易生銹,在物料輸送過程中可以確保原材料不會被污染,不會帶來任何破壞,可以實現生產過程中的全封閉自動化快速進料,具有加料過程自動化的特點。。
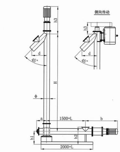
不銹鋼螺旋上料機可根據不同的應用場景采用不同的設計,如是否需要加長、是否自動加料,輸送的傾角、進料口是否需要裝料斗、進料斗尺寸等。

不銹鋼螺旋提升機廣泛應用于建筑材料、化工、電力、冶金、煤礦、糧食等各個行業。它適用于水平、傾斜或垂直輸送粉末。顆粒狀和小塊物料,如煤礦。灰。渣。水泥。食品等。
1.整機與材料的接觸部分均采用不銹鋼材料,耐酸堿腐蝕,耐高溫,不易生銹,清潔衛生。
2.1-12米的長度設計范圍可以定制,上料管徑可以根據用戶要求設計,單機上料高度可以達到2-5米,可以多機串聯使用,每小時上料速度1-3噸。

3.物料倉加裝振動電機,使物料輕松自動進入螺旋,物料不易堵塞。
4.螺旋可反轉排料,料管下端有閘門放料,整個螺旋可輕松取出。
1.不銹鋼螺旋提升機管內壁與螺旋葉片間隙3mm,螺旋葉片激光切割加工,所有焊接接頭拋光處理,清潔衛生,無殘留物料。
2.采用進出口萬向軸承隔熱防塵設計,上料機頭設計安裝進口油封,確保軸承內有灰塵和雜物,經久耐用。
3.螺旋軸采用不銹鋼無縫管,經車床校正,保證同心度,運行穩定,螺旋葉片采用加厚不銹鋼葉片,使用壽命長。
4.不銹鋼螺旋提升機電氣設計具有過載保護,能有效保護電機不燃燒,操作安全可靠。





客服1